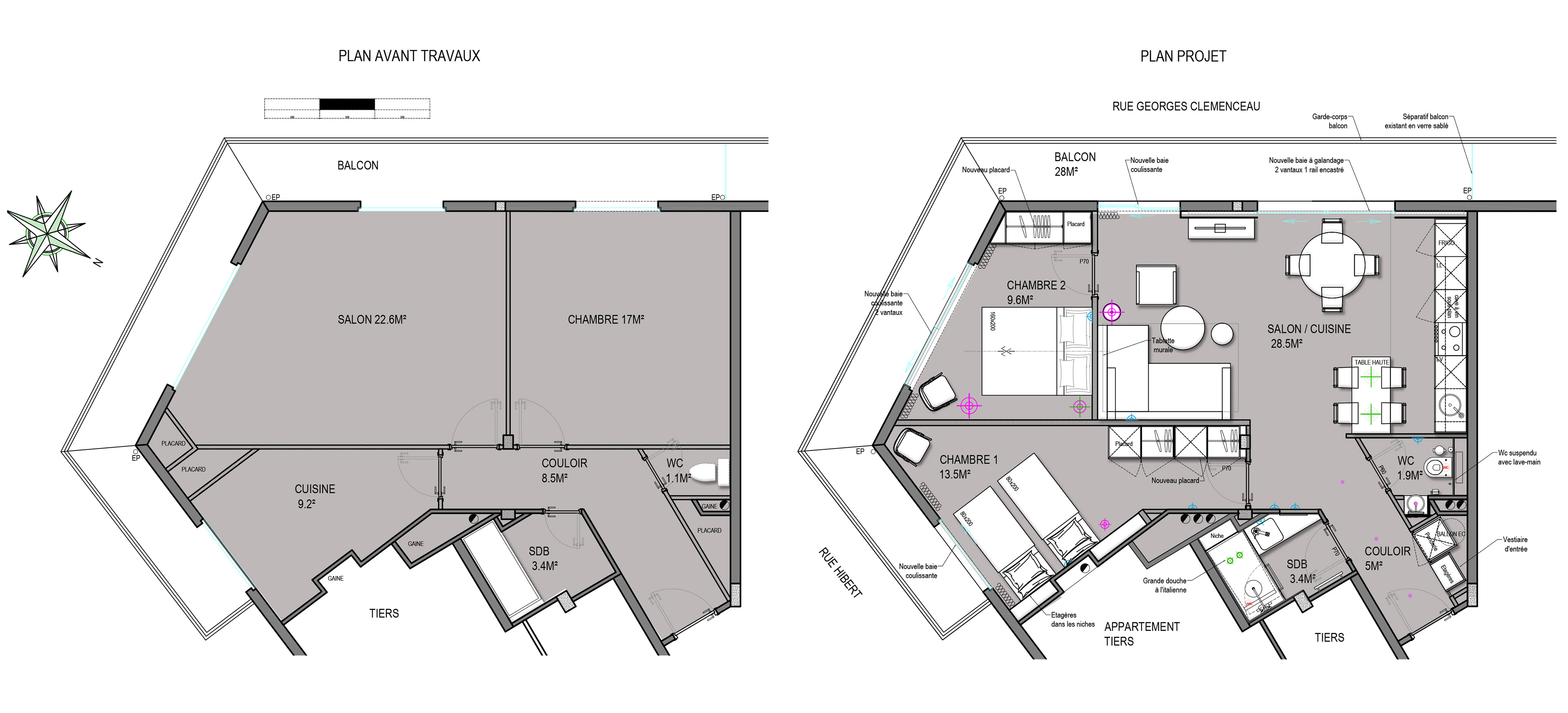
Réhabilitation d'un appartement de 62M² dans son jus depuis les années 70.
 De beaux volumes à redistribuer, et à moderniser pour une famille. Tout a été déposé et nous avons conçu des agencements sur mesure pour optimiser chaque espace. 
Quelques photos avant travaux.

You may also like

Back to Top